Freihampton | KoGro 



Wohnungsbau Wettbewerb Freiham  | engere Auswahl
partizipative Genossenschaft
Kooperative Großstadt
München, 2019

 








FREIHAMPTON gibt für das Prinzip eines partizipativen Genossenschaftsmodell
und als Wohnungsbau eine robuste Struktur mit Aneignungsmöglichkeit durch
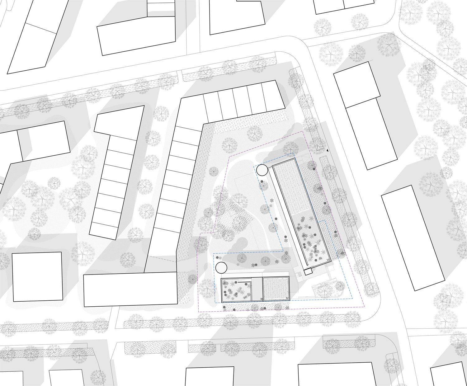
die Bewohner vor. FREIHAMPTON erkennt seine Position im städtebaulichen Kontext und
verpflichtet sich dem städtischen Raum. Durch das bewusste nicht besetzen
der Ecke des Baufeldes entsteht eine gemeinsame Adresse für beide
Baukörper. Es entsteht ein Ort der zufälligen und absichtlichen Begegnung, der
sich durch die beiden Baukörper hindurch zum gemeinschaftlichen Garten im
Innenhof entwickelt. Gemeinschafts- und Kooperationsräume stapeln sich
entlang der Ostfassade des viergeschossigen Baukörpers. Auf einen
Fahrradkeller wird zu Gunsten eines wirtschaftlichen und identitätsprägenden
Fahrrad Hochregal verzichtet das sich auf der Südfassade des
sechsgeschossigen Baukörpers befindet. Hochregal und Gemeinschaftsräume
bilden die Platzfassaden und repräsentieren die ökologisch, nachhaltige
geprägte Gemeinschaft nach außen.

Struktur und Organisation
Das forsche Vorhaben ist durch eine einfache und klare konstruktive Struktur geprägt. Eine aus Holz modular vorgefertigte Installationsschicht, gefüllt mit den Funktionsräumen Bäder und Küchen, übernimmt die Queraussteifung des Baukörpers. Durch vorgefertigte Raumtrennwände bzw. Wohnungstrennwände werden auf einem Raster alle Individualzimmer bzw. gemeinschaftlich genutzten Wohnräume abgetrennt. Der zukünftige Bewohner kann hierbei frei über die innere Organisation des Grundrisses mitentschieden. Das höchst anpassungsfähige System lässt sowohl einseitig orientiertes Wohnen als auf durchgesteckte Grundrisse zu. Der Kern als strukturelles Rückgrat, funktioniert hierbei als eine Art Raumfilter. Erschlossen werden die Wohnungen über einen gemeinschaftlichen Laubengang der dem Holzbau aus vorgefertigten Betonstützen- und platten vorgestellt wird. Zwischen Laubengang und den Individualräumen, befindet sich eine Pufferschicht das „Sonnenzimmer“.

Das Sonnenzimmer
Gemeinschaft im Wohnen entsteht wenn man sorgsam mit dem individuellen
Bedürfnissen nach Rückzug umgeht. Man will dazugehören (Identität) und sich gleichzeitig abgrenzen (Individualität). Beides sind essenzielle Grundbedürfnisse des Menschen. Der Schlüssel zu einer hohen Wohnqualität liegt in der feinen Balance von
Autonomie und Einordnung, von Isolation und Kommunikation - es ist ein
dialektisches System. Wohnen und damit auch das Zusammenleben in einem
urbanen, städtischen Kontext basiert letztlich auf einem gesunden Verhältnis
von Nähe und Distanz - und der Freiheit, zwischen diesen beiden Polen hin -
und herpendeln zu können. Das „Sonnenzimmer“ übernimmt das Bedürfnis
des Hin - und Herpendelns. Je nach Bedürfnis versteht sich das Sonnenzimmer
als Erweiterung des Individualraumes oder als Schnittstelle zur
gemeinschaftlichen Laubengangerschließung. Durch eine leichte transluzente
Schicht lassen sich beide Zustände herstellen. Je nach Bedürfnis wird die
Raumschicht zum Puffer zwischen Individuum und Gemeinschaft oder zum
Raum nachbarschaftlicher Begegnung.


Aneignungsmöglichkeiten
Die strenge Struktur ermöglicht die Ausbildung verschiedener Raumgrößen innerhalb des Grundmoduls  von 3,36 m x 9,90m. Durch den Einbau oder den Rückbau leichter Trennwände lassen sich Wohnungen  vergrößern oder verkleinern. Die innere Organisation des Grundrisses kann ohne größeren Aufwand dem Nutzerprofil angepasst werden





 Daniel Klinger Architektur, München 2022