KAEPSELE | IBA’27
Internationale Bauausstellung IBA´27
mehrfachbeauftragung
STADT LEINFELDEN – ECHTERDINGEN, 2022/23
mit Stella Birda Architektur und NUWELA Büro für Städtebau und Landschaftsarchitektur

Seite werden bewusst zur Landschaft hin offen
Der zentrale Hof in der Mitte bildet das Herzstück
des Quartiers. Es ist ein Ort der Begegnung, der
Kommunikation und Austausches für die Nachbarschaft
und fördert das Gemeinsame im Quartier.
Der nördliche Hof schafft einen ausreichenden Abstand
zur Bebauung im Baufeld Nord und bildet zusammen
mit der zukünftigen Bebauung im Norden einen
großzügigen Freiraum als Verbindungsstück zwischen
den zwei Nachbarschaftsinseln.
Im Süden des Quartiers rückt die Bebauung nach innen
und schafft eine Pufferzone zwischen Quartiershub
und Wohnbebauung. Dieser halböffentlicher Raum kann
sowohl von den Bewohnern der Quartiers, den Besuchern
der Tagespflege als auch den übrigen Nachbarn genutzt
werden. Temporär schafft. Verbunden werden die Baukörper durch einen längs
durch das Grundstück laufenden mehrgeschossigen
offenen und filigranen Steg, der einerseits der Erschließung
dient und andererseits als Ort des Zusammenkommens,
der Begegnung und der Kommunikation eine
wichtige Rolle im Entwurf einnimt.
Vom zentralen Vorplatz an der Straßenseite gelangt
man in den durch den Steg gefassten Bereich über den
alle Häuser erschlossen werden. Dadurch wird eine
gute Auffindbarkeit und Adressbildung garantiert.
Die Wohnungen im Erdgeschoss werden durch den Hof
erschlossen.
Die Eingangssituation zu den oberen Geschossen ist
klar definiert und durch ihre Offenheit attraktiv und
hell gestaltet. Die Laubengänge weiten sich an den
Wohnungszugängen zu Nischen, die wiederum halbprivate
Aufenthaltsmöglichkeiten schaffen.
Durch die gewählte Laubengangstruktur können alle
Häuser durch nur zwei offene Treppen erschlossen werden, die ein Anleitern der Feuerwehr unnötig machen
und die Struktur besonders effizient macht.

















Es wird bewusst auf eine Tiefgarage verzichte, da
die teure und klimaschädliche Errichtung dieser
aus Sicht des Verfassers nicht zukunftsorientiert
und nachhaltig wäre und im Sinne der Mobilitätswende
keine zusätzlichen Anreize für private PKW geschaffen
werden sollen. Durch ein ausgewogenes Mobilitätskonzept
und oberirdische Parkplätze können die
verkehrlichen Anforderungen trotzdem erfüllt werden.
Die offene und lockere Siedlungsstruktur ermöglicht
eine ausreichende Durchlüftung des Quartiers.
In der Summe können wir von einer nachhaltigen Bebauung
in einer grünen Oase sprechen, die sich schonend
in das gewachsene Terrain einfügt.
Der Primäre Entwurfsgedanke in Bezug auf die Wohnungen
liegt darin, ein System zu entwickeln, das
viel Flexibilität und Anpassbarkeit erlaubt.
Ein System, das sich zusammen mit den wechselnden
Anforderungen der Gesellschaft wandeln und entwickeln
kann. Die Module sehen innerhalb des gegebenen
städtebaulichen Rahmens Wohnungen mit hoher Flächeneffizienz
und hoher räumlicher Qualität vor. Die
Wohnungen sind nicht für eine bestimmte Zielgruppe
gedacht und lassen sich individuell je nach Bedarf
verändern. Alle Wohnungen sind zweiseitig orientiert
und verfügen über einen privaten Außenraum. Entsprechend
des gegebenen Wohnungsschlüssels bietet der
Entwurf Wohnungen von 1-Zimmer- bis 5-Zimmer-Wohnungen
an, sowie Angebote für besondere Wohnformen
wie Cluster.
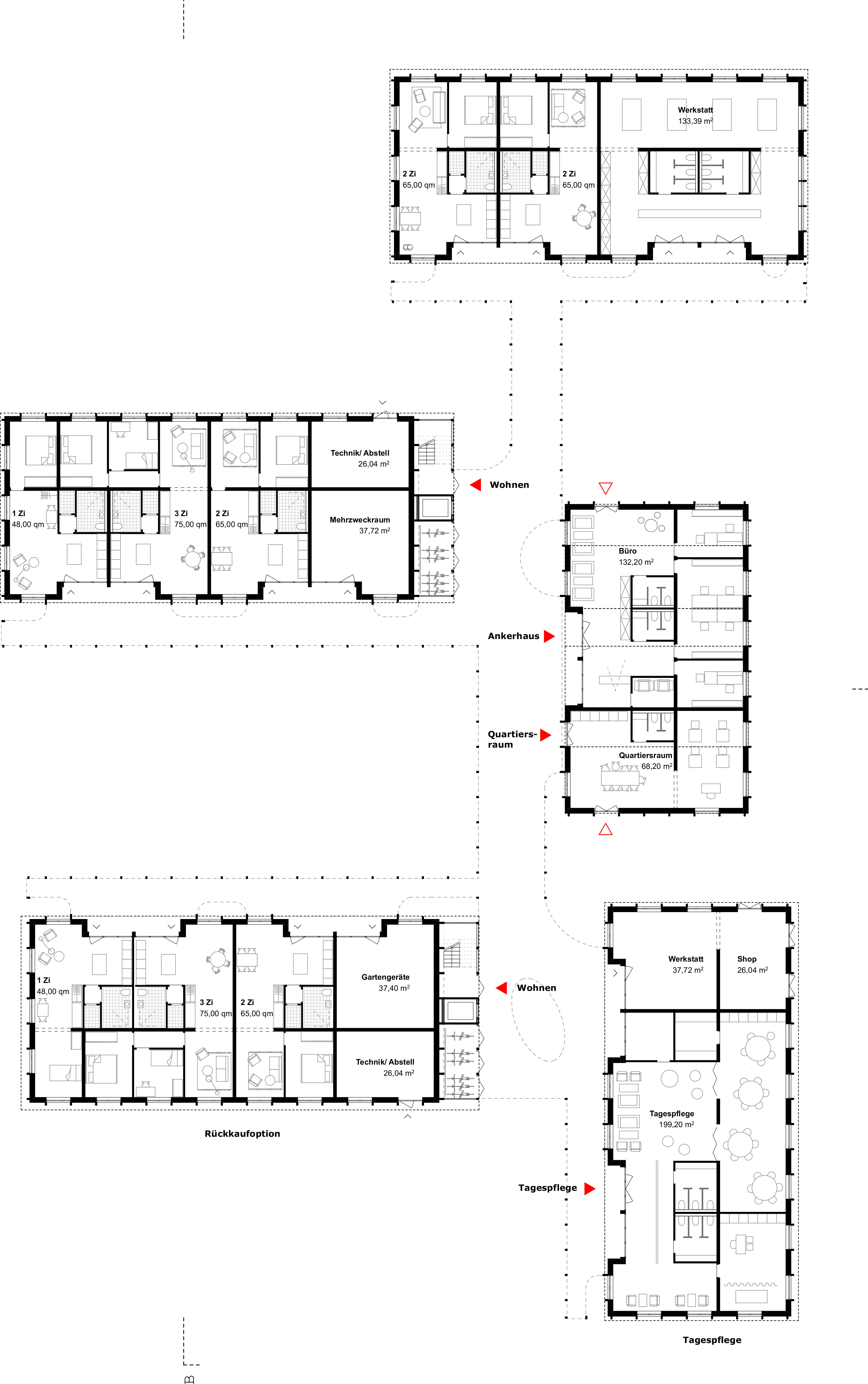
Die Wohnungen sind in Drei- und Vierspännern mit
sehr geringen Verkehrsflächen wirtschaftlich an den
Laubengängen angeordnet. Die Badezimmer, Abstellräume
und Küchen liegen immer übereinander.
Die nichttragenden Trennwände können im Fall einer
Umstrukturierung einfach versetzt werden, sodass
bei jeder Wohnung mehrere Zimmer zugeschaltet werden
können. Somit kann bei wechselnder Nutzer- und Altersstruktur
die Größe der Wohnungen angepasst werden.
Im Erdgeschoss befindet sich in jedem Haus ein multifuntionaler
Raum, der als Abstell-, Technik- oder
Werkstattsraum genutzt werden kann. Die klar adressierten
Hauptzugänge neben den offenen Treppen bieten
Fahrrad-, Müll- und Kinderwagenräume.
FREIRAUMKONZEPT
Offene Landschaft nebst einem baulich gefassten
wie geschützten, kleinteiligen Raum als Treffpunkt
und Adressbildung: die klassischen Motive eines
dörflichen Ensembles werden im Entwurf aufgegriffen.
Die Ortsrandlage wird selbstbewusst als gemeinschaftlicher
Garten ausgebildet, der durch seinen
produktiven Aspekt den Bezug zur angrenzenden landwirtschaftlich
genutzten Landschaft sucht: Streuobstwiesen
und Krautgärten laden die Bewohner:innen
ein, selbst Erzeuger:in zu werden. Darüber hinaus
bietet die vielseitig nutzbare grüne Gemeinschaftsfläche
Orte zum Spielen, Verweilen, Ruhen, Treffen
sowie ökologische Vorrangflächen gelichermaßen.
Zum Straßenraum und Quartiersinneren sind die Adressen
- im spannenden räumlichen Gefüge zwischen
Enge und Aufweitung - ausgebildet. Der mittig angeordnete
Treffpunkt verlängert die erdgeschossigen
Gemeinschaftsräume fließend ins Äußere. Ein auf
drei Seiten baulich gefasster Ort entsteht, der sich
reizvoll nach Westen in die Landschaft öffnet. Spielerisch
überspannt die hängende Beleuchtung das zentrale
und kommunikative Herzstück des Ensembles. Zur
Goldäckerstraße öffnet sich ebenfalls ein kleinerer
Platzraum, der entsprechend seiner Orientierung zur
Straße und der erdgeschossigen Werkstattnutzung zum
Werken und Arbeiten im Freien einlädt.
Die Übergänge zwischen den verschiedenen Freiraumstrukturen
sind bewusst fließend gestaltet. Der strukturelle
Reichtum der Vegetationsstrukturen lässt eine
steuerbare ‚Wildnis‘ entstehen, die das individuelle
Maß an Privatheit und Schutz der erdgeschossigen
Wohnlagen flexibel entwickel- und anpassbar belässt.
Der im Süden angeordnete Raum für 26 Stellplätze
wird nachhaltig in Schotterrasen ausgebildet und
kann leicht rückgebaut werden und als Magerstandort
einen ökologischen Mehrwert erzeugen. Jeweils nördlich
der Dachflächen wie auch der versiegelten Flächen
werden Orte zur Retention und Versickerung anfallenden
Niederschlagswassers geschaffen.
die teure und klimaschädliche Errichtung dieser
aus Sicht des Verfassers nicht zukunftsorientiert
und nachhaltig wäre und im Sinne der Mobilitätswende
keine zusätzlichen Anreize für private PKW geschaffen
werden sollen. Durch ein ausgewogenes Mobilitätskonzept
und oberirdische Parkplätze können die
verkehrlichen Anforderungen trotzdem erfüllt werden.
Die offene und lockere Siedlungsstruktur ermöglicht
eine ausreichende Durchlüftung des Quartiers.
In der Summe können wir von einer nachhaltigen Bebauung
in einer grünen Oase sprechen, die sich schonend
in das gewachsene Terrain einfügt.
Der Primäre Entwurfsgedanke in Bezug auf die Wohnungen
liegt darin, ein System zu entwickeln, das
viel Flexibilität und Anpassbarkeit erlaubt.
Ein System, das sich zusammen mit den wechselnden
Anforderungen der Gesellschaft wandeln und entwickeln
kann. Die Module sehen innerhalb des gegebenen
städtebaulichen Rahmens Wohnungen mit hoher Flächeneffizienz
und hoher räumlicher Qualität vor. Die
Wohnungen sind nicht für eine bestimmte Zielgruppe
gedacht und lassen sich individuell je nach Bedarf
verändern. Alle Wohnungen sind zweiseitig orientiert
und verfügen über einen privaten Außenraum. Entsprechend
des gegebenen Wohnungsschlüssels bietet der
Entwurf Wohnungen von 1-Zimmer- bis 5-Zimmer-Wohnungen
an, sowie Angebote für besondere Wohnformen
wie Cluster.
Die Wohnungen sind in Drei- und Vierspännern mit
sehr geringen Verkehrsflächen wirtschaftlich an den
Laubengängen angeordnet. Die Badezimmer, Abstellräume
und Küchen liegen immer übereinander.
Die nichttragenden Trennwände können im Fall einer
Umstrukturierung einfach versetzt werden, sodass
bei jeder Wohnung mehrere Zimmer zugeschaltet werden
können. Somit kann bei wechselnder Nutzer- und Altersstruktur
die Größe der Wohnungen angepasst werden.
Im Erdgeschoss befindet sich in jedem Haus ein multifuntionaler
Raum, der als Abstell-, Technik- oder
Werkstattsraum genutzt werden kann. Die klar adressierten
Hauptzugänge neben den offenen Treppen bieten
Fahrrad-, Müll- und Kinderwagenräume.
FREIRAUMKONZEPT
Offene Landschaft nebst einem baulich gefassten
wie geschützten, kleinteiligen Raum als Treffpunkt
und Adressbildung: die klassischen Motive eines
dörflichen Ensembles werden im Entwurf aufgegriffen.
Die Ortsrandlage wird selbstbewusst als gemeinschaftlicher
Garten ausgebildet, der durch seinen
produktiven Aspekt den Bezug zur angrenzenden landwirtschaftlich
genutzten Landschaft sucht: Streuobstwiesen
und Krautgärten laden die Bewohner:innen
ein, selbst Erzeuger:in zu werden. Darüber hinaus
bietet die vielseitig nutzbare grüne Gemeinschaftsfläche
Orte zum Spielen, Verweilen, Ruhen, Treffen
sowie ökologische Vorrangflächen gelichermaßen.
Zum Straßenraum und Quartiersinneren sind die Adressen
- im spannenden räumlichen Gefüge zwischen
Enge und Aufweitung - ausgebildet. Der mittig angeordnete
Treffpunkt verlängert die erdgeschossigen
Gemeinschaftsräume fließend ins Äußere. Ein auf
drei Seiten baulich gefasster Ort entsteht, der sich
reizvoll nach Westen in die Landschaft öffnet. Spielerisch
überspannt die hängende Beleuchtung das zentrale
und kommunikative Herzstück des Ensembles. Zur
Goldäckerstraße öffnet sich ebenfalls ein kleinerer
Platzraum, der entsprechend seiner Orientierung zur
Straße und der erdgeschossigen Werkstattnutzung zum
Werken und Arbeiten im Freien einlädt.
Die Übergänge zwischen den verschiedenen Freiraumstrukturen
sind bewusst fließend gestaltet. Der strukturelle
Reichtum der Vegetationsstrukturen lässt eine
steuerbare ‚Wildnis‘ entstehen, die das individuelle
Maß an Privatheit und Schutz der erdgeschossigen
Wohnlagen flexibel entwickel- und anpassbar belässt.
Der im Süden angeordnete Raum für 26 Stellplätze
wird nachhaltig in Schotterrasen ausgebildet und
kann leicht rückgebaut werden und als Magerstandort
einen ökologischen Mehrwert erzeugen. Jeweils nördlich
der Dachflächen wie auch der versiegelten Flächen
werden Orte zur Retention und Versickerung anfallenden
Niederschlagswassers geschaffen.
ausgeführt.